The Learning Studio (Room 102) is a computer lab funded by the Student Technology Fee. During academic quarters, OUGL 102 is used for instruction sessions and workshops led by the UW Libraries and Learning Technologies. Otherwise, it is open for use as a study space.
Info
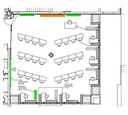
Room Information
| Room Number |
OUGL 102 |
| Type | Computer Lab |
| Capacity & Layout |
Workstations available for 30, facilitator workstation 24 seats in three split rows, 6 around perimeter |
| Location | Odegaard Undergraduate Library, First Floor |
| Suited For | Workshops, instruction sessions, and study space |
Software and Equipment
Software
- Only 25 seats, including the instructor station, have Adobe software installed
-
The peripheral machines are the same as those found in the Odegaard Learning Commons General Access Workstations
-
The full software list can be found here: Room 102 Software
Equipment
- 30 Apple iMac 27”, Intel i5 CPU, Radeon GPU, 16GB RAM, 5K display, 512GB SSD
- Computers require UW Net ID for login
- Apple Mouse and Apple Keyboard with numeric keypad
- Gyration Air Mouse Elite with 100′ Keyboard and Motion Tools (software available for checkout at front desk)
- Projector and Screen
- Logitech 2 523-PC Multimedia Speaker
Contact
Technology and Workshops
Libraries Instruction Sessions
General Information
Odegaard Library Administration